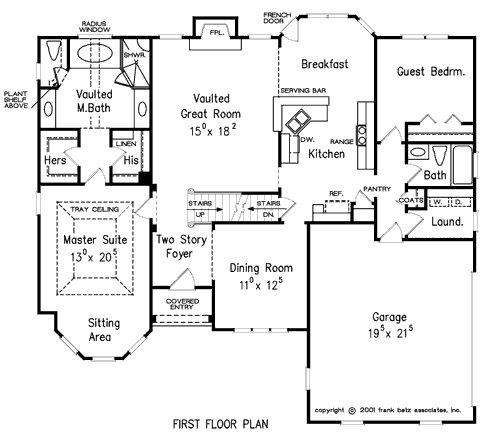
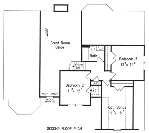
Lot #14 Watson Place-----5076 Watson Place Lane

**$292,900.**-------2400' total heated
4 spacious bedrooms, 3 full baths, double garage, gas fireplace in great room,
covered porch, finished bonus room upstairs, granite kitchen and bath counter tops,
fully sodded and landscaped yard, LEWISBURG SCHOOLS and easy access to I69 Corridor!!
Contact Wanda Lambert for all the details (901)619-1508



cialis and herbal be used together Adjus